這樣的裝修設計加上160寸投影,沒有人會不喜歡
時間 :2018-10-30 11:06:03
在不勝枚舉的室內風格中,你是否有自己喜歡的風格呢?不管什么風格,都是賦予我的居住空間嶄新的生命、拓展無限可能。讓屋主返家時,得以有一個溫馨的港灣,可以肆意妄為的做自己想做的事,做自己想吃的東西,這就是家。你覺得呢?



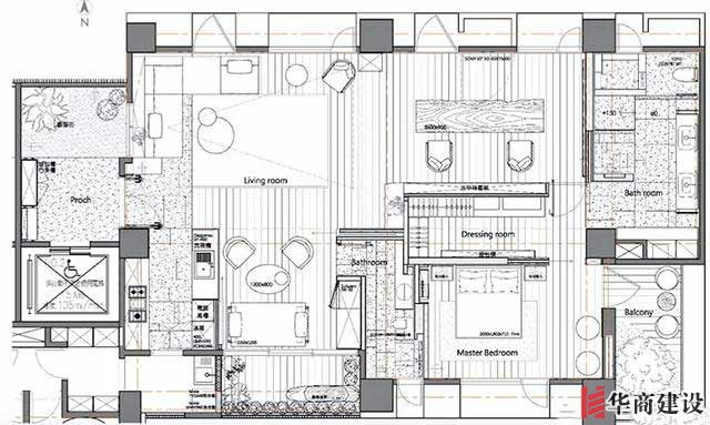
一層一戶的設計,使得電梯門打開即是靜謐典雅小庭院,左側高級布料訂制而成的鞋柜,因其尼龍材質具備絕佳韌性、防水與耐候性佳,正適合半戶外玄關,于是特別至雜貨街尋得黑色米袋做為鞋柜表層,在燈光照映下,散發熠熠動人光澤。


客廳考量屋主喜愛觀看電影的興趣,因此特別在與書房交界的梁位間設置一面160寸大型投影屏幕,并將米白沙發正對于此,即使多人來訪也能一同共享劇院時光。

從門口旁的大面落地窗窺見室內精致陳設與柔和色調,入門以天然石材觀音石做為簡約落塵區,再銜接上溫潤木質調,襯托出自然氣息。

廚房采一體化設計,并藉由溫潤木質與銀灰不銹鋼產生冷暖、剛柔對比,緊鄰廚房由推拉門圍繞起的,既是餐廳也可成為獨立客房。

設計團隊屏除過往一桌四椅的制式做法,透過舒適躺椅、藤編座椅隨性擺放,在窗外綠意陪襯下帶出悠閑度假氛圍,角落處也垂掛別致燈飾,藉由柔和側光暈染,讓用餐成為一件自在舒心的事。




將一張長達360公分的檜木桌置于中央,正是夫妻二人的書桌與工作臺,設計團隊貼心為其先行規劃好電路配置,透過鐵件桌腳即可充電,增添實用性質。

后方大型通透書柜融合進鐵花窗素材,當異國紀念品擺放于此時,宛如小型藝廊空間,底層木矮柜則能擺放影印機、傳真機等設備,讓屋主在檜木香、日光綠意伴隨下優雅工作。



臥室配置雖然相對簡化,但細節處卻是不可忽視。設計團隊巧妙在底層開一扇端景窗,借此框出陽臺綠意景致,帶給房內自然氣息,并且為了搭配床組藍白色調,特地到苗栗尋求老師傅訂制這面擁有雅致藍白漸層色系的藍染布,不僅與房間風格相符,也創造出舒眠氛圍。

馬桶旁的陳架,不僅附有遮擋功用,也能置放物品與吊掛毛巾,輕盈視覺更替衛浴增添一抹藝術氣息。

樸實文雅的觀音石做為浴室地面材,墻面則是由老師傅細心研磨出的白凈磨石子墻面,整體空間在建材靜謐過度下,展現優雅氣度,而浴缸配置則緊靠對外窗,沐浴時即可眺望遠方青山,給予身心靈全面放松。

- 上一篇:廣州家裝美式簡裝風格,時尚卻不貴
- 下一篇:小型辦公室怎樣裝修的大一些?
推薦閱讀

小型的辦公室裝修有什么設計,能更添光彩
在這個市場經濟時代,各種創新公司層出不窮,與那些已經發展成熟的公司相比,剛剛起步的創新公司很難吸引人才,這該怎么辦? 我們要做的第一件事就...

盤點時下正盛行的辦公室裝修風格
辦公室裝修風格有很多種,不同的風格給人的感覺是不一樣的,風格不同帶來的視覺效應也是不同的,有些顏色震撼人心,有些色彩平靜定神。風格的不同...

廣州辦公室裝修該進行哪些方面的了解
辦公室裝修質量好壞將會影響到員工們的心情狀態,當然也有可能會影響到人們的工作效率,因此大部分的老板們都會想辦法進行廣州辦公室裝修,在這里...

華商企業培訓課程-論學習的重要性
2020年6月15日 華商培訓課程 主講: 林紅星 為了提高員工素質 促進企業發展 論學習的重要性 三人行 必有我師焉 擇其善者而從之 其不善者而改之 這不僅是...

從兒童房的裝修談起,六一兒童節快樂
時間如白駒過隙 轉眼又到仲夏 六一兒童節如約而至 對于小朋友們期盼已久的節日 6.1 兒童節 寶爸寶媽準備好禮物了嗎 如果沒有,不如送他們一間 環保健...


